總價:695萬
建物總面積:22.6坪
每坪單價:30.75萬/坪
主建物:21.16坪
地坪:0.0坪
附屬:1.44坪
公設:0.0坪
現況用途:住家
物件種類:公寓
法定用途:住家用
樓層:5 / 5層
屋齡:44.4
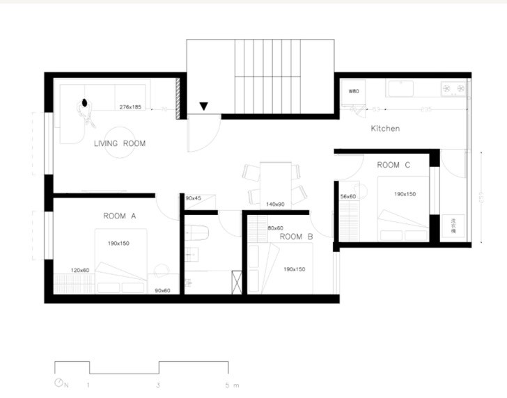
格局:3房2廳1衛
座向:座西南朝東北
車位:無
附近學區:松竹國小
鄰近市場:新一點利
鄰近公園:舊社公園
公車站名:
附近商圈:松竹商圈
※以上照片若非室內,即為附近環境介紹,非刊登物件本身。
全戶電線冷熱水管更新
空間設計師規劃
智慧型電子鎖
浴室,外牆,窗框,頂樓防水更新
頂樓局部鐵皮,頂樓增強隔熱
全新三機廚具
格局方正採光通風佳
交通便捷
生活機能完善















| 年月 | 地址 | 房屋型態 | 總價 | 單價 | 建坪 | 地坪 | 樓層 | 格局 | 屋齡 |
11410 | 台中市北屯區北興街45號5樓之1 | 住宅大樓 (有車位) | 1200萬 | 27.82萬 | 43.13坪 | 4.53坪 | 5樓/14樓 | 3房2廳2 | 26.3年 |
11410 | 台中市北屯區三光北二街56號3樓 | 公寓 | 465萬 | 20.26萬 | 22.96坪 | 6.38坪 | 3樓/5樓 | 2房2廳1 | 36.5年 |
11410 | 台中市北屯區四平路568巷7號二十四樓之7 | 住宅大樓 (有車位) | 2350萬 | 49.46萬 | 47.51坪 | 4.18坪 | 24樓/24樓 | 3房2廳2 | 3.4年 |
11410 | 台中市北屯區文心路四段288號二十二樓之10 | 住宅大樓 (有車位) | 868萬 | 37.48萬 | 23.16坪 | 1.92坪 | 22樓/22樓 | 1房1廳1 | 12.4年 |
11410 | 台中市北屯區太原路三段1359號九樓之6 | 住宅大樓 (有車位) | 1300萬 | 29.16萬 | 44.58坪 | 6.42坪 | 9樓/14樓 | 3房2廳2 | 9.9年 |